Článek
Na začátku vysněné přeměny svého bydlení máte tyto zásadní požadavky:
- Mít postel ke spaní a gauč k posezení
- Smysluplně využít každý prostor v interiéru
- Mít světlý byt, který dýchá
- Všechno to sladit, aby interiér nepůsobil jako „každý pes, jiná ves“
Podívejte se, jak si s jedním takovým prostorem poradili experti z bytového studia Indoor.

Z malého prostoru lze šikovně vykouzlit útulné bydleníFoto: indoor.cz / Zpracování: Seznam Brand Studio (Hana Prokopová)
Na první pohled může takový byt působit jako útulný designový apartmán. Teprve při bližším pohledu si uvědomíte, že celý interiér tvoří jediná místnost. Přesto zde mohou bez kompromisů pohodlně bydlet dva lidé. 💯
Klíčem bylo chytré řešení a práce s detailem. Dalším důležitým prvkem pak byla změna výšky podlahy v koupelně. Díky tomu jsme mohli upravit dispozice celého prostoru.
V noci ložnice, přes den obývák
Dominantou interiéru je plnohodnotná dvoulůžková postel ukrytá do vestavěné stěny. Ve složeném stavu působí prostor jako moderní obývací pokoj s béžovou pohovkou, čistými liniemi nábytku a vizuálně klidnou atmosférou. Večer pak stačí několik vteřin a z obýváku se stává útulná ložnice v dekoru dřeva s jemným ambientním světlem a praktickým osvětlením na čtení.

Žádné kompromisy v podobě rozkládacího gauče. Jen plnohodnotné spaní a důmyslný systém, který pracuje za vásFoto: indoor.cz
Každý centimetr má svůj smysl
Interiér staví na kombinaci světlých ploch, teplého dřeva a černých detailů, které mu dodávají moderní, lehce industriální nádech. Vestavěné úložné prostory splývají se stěnou, pracovní kout přirozeně navazuje na obytnou část a otevřené police přidávají hloubku i osobitost. Dalším chytrým řešením a úsporou místa je výsuvný jídelní a pracovní stůl.
Kuchyň je srdcem každého domova. I toho nejmenšího
Kuchyňská linka ve tvaru L působí kompaktně a nabízí vše potřebné, zatímco světlý obklad a podsvícení horních skříněk prostor opticky zvětšují. Dřevěná lamelová stěna s televizí propojuje kuchyňskou část s obytnou zónou a vytváří vizuální dominantu bytu.

Kuchyně poskytuje dostatek prostoru pro vaše kulinářské experimenty. Každý centimetr má své využitíFoto: indoor.cz
Malý byt, který je prosluněný a dýchá
Velké okno přivádí do místnosti dostatek denního světla a podtrhuje vzdušnost interiéru. Světlá podlaha sjednocuje prostor. Koupelna navazuje stejným designovým jazykem – kombinace bílé, jemné struktury a černých baterií působí nadčasově a elegantně.
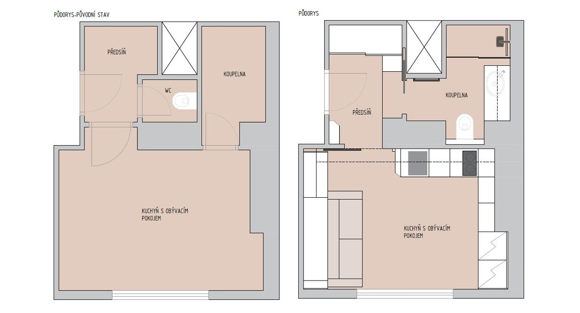
Ze zdánlivě neřešitelné plochy se stal členitý praktický byt:

PŘED a PO: Návrháři si s dispozicí malého bytu elegantně poradiliFoto: indoor.cz
Výsledek? Bydlení, které dokazuje, že metry čtvereční nejsou rozhodující. Důležitější je promyšlený návrh, kvalitní truhlářské zpracování a odvaha pracovat s multifunkčními prvky.
Za návrhem stojí zkušenosti i rodinná tradice
Pod tímto a mnoha dalšími projekty je podepsaný tým společnosti Indoor, která se návrhům a realizacím interiérů věnuje dlouhodobě. „Každá rekonstrukce je pro nás příležitostí vytvořit bydlení, které přesně odpovídá osobním potřebám klienta. Díky vlastnímu týmu designérů a technickému zázemí dokážeme zrealizovat celé řešení na míru od prvního návrhu až po poslední detail,“ říká Ing. Jitka Kremerová, vedoucí projektant a designer společnosti Indoor. Bytové studio Indoor působí v Praze a specializuje se na kompletní návrhy a realizace rekonstrukcí bytů i komerčních prostor. Klientům nabízí široké portfolio služeb:
- Interiérové návrhy
- Rekonstrukce, stavební úpravy
- Výroba nábytku na míru
- Finální realizace, přičemž díky vlastní truhlárně dokáže vybavení prostoru přesně přizpůsobit stylu zákazníka.
Kombinace zkušeností, výroby na míru a osobního přístupu je ve výsledku jasně patrná. Každý detail má své místo a celý prostor funguje jako harmonický celek. Je to důkaz, že když se spojí praxe, cit pro design a poctivá řemeslná práce, může i jeden malý pokoj nabídnout plnohodnotné bydlení pro dva.
💡 TIP: Potřebujete poradit s kuchyní, vestavěnou skříní, podlahou či dalšími interiérovými prvky podle vašich představ? Kontaktujte odborníky z bytového studia Indoor.

Zamilujte se opět do svého bytu díky specialistům z bytového studia IndoorFoto: indoor.cz
